Maison neuve à
Yerres
(91330) Référence :
PM2293907_1
Prix du projet : Maison avec Terrain
prix 593 000 €
- 6 pièces
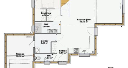
- 5 chambres
- Surface maison 114 m2
YERRES (91330), proche RER D :
DEMEURE CANOPÉE des Maisons Balency : une Superbe Maison en Bois de 114 m² à bâtir sur terrain viabilisé de 610 m² situé à 25 minutes de PARIS !
Dans un quartier calme et pavillonnaire, découvrez cette parcelle viabilisée de 610 m² et faites bâtir dessus une belle maison de 6 pièces.
Faites le choix d'une demeure en ossature bois, écologique, économique et durable !
Avec ses 5 chambres et 2 salles de bains, ce modèle de 114 m² allie confort et performance :
- Isolation thermique et acoustique renforcée (2x plus efficace que le béton ou la brique)
- Construction rapide et propre : 65 % de déchets en moins, 80 % d'eau économisée
- Matériau naturel à bilan carbone positif, issu de forêts éco-gérées
Confort été comme hiver, sans entretien contraignant
Profitez de la commune, et du Val d'Yerres en général, localisation agréable comprenant diverses commodités, dont de nombreux commerces et des lieux culturels (Propriété Caillebotte, Forêt de Sénart...). Paris vous sera accessible en 20 minutes, vous offrant ainsi un juste équilibre entre vie paisible et activités sur la capitale !
Les Maisons Balency d'Ormoy, membre du Groupe Hexaôm (1er constructeur de maisons individuelles en France), vous accompagne dans la réalisation de votre projet sur-mesure, toujours conforme aux exigences les plus récentes de la norme RE2020.
Contactez notre agence d'Ormoy dès aujourd'hui au 09 67 70 15 81.
Maisons BALENCY - Agence d'Ormoy
23 chemin de Tournenfils, 91540 Ormoy
Annonce proposée par un Agent Commercial Partenaire.
Mentions légales
Terrain proposé par un partenaire foncier selon disponibilités et autorisation de publicité au prix de 278 000 €. Hors droit d'enregistrement et frais de notaire. Maison proposée, avec un contrat de construction de maison individuelle, dans le cadre de la loi du 19/12/1990, au prix de 315 000 € (Hors branchements et raccordements, papiers peints, peintures, revêtement de sol dans les chambres, qui sont chiffrés dans les travaux qui restent à charge du client. Tarif modifiable sans préavis). Étiquette énergie : A. Différents modèles disponibles pour ce terrain. Assurances et garanties du constructeur comprises (RC professionnelle, décennale, dommage ouvrage).Agence Maisons Balency de Ormoy (91540)
- Téléphone :
- 09 67 70 15 81
- Adressse :
- 23 chemin de Tournenfils - 1er étage
91540 Ormoy, France
