Maison neuve à
Yerres
(91330) Référence :
PM2293907_3
Prix du projet : Maison avec Terrain
prix 423 000 €
- 5 pièces
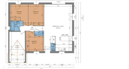
- 3 chambres
- Surface maison 82 m2
YERRES (91330), proche RER D : PLAIN-PIED TRADITIONNEL des Maisons Balency d'Ormoy à bâtir sur un terrain viabilisé de 610 m² !
Devenez propriétaire(s) dans le Val d'Yerres en faisant construire sur une belle parcelle une jolie maison pratique de 3 chambres, convenant tant à un jeune couple avec enfant, qu'à de frais retraités.
Le projet terrain + construction (hors frais annexes et frais de notaire) est envisageable dès 423 000 €, avec une possibilité de personnalisation complète selon vos aspirations et votre budget.
À Yerres, vous bénéficierez d'un cadre de vie privilégié à deux pas des commerces (Carrefour City, NaturéO, boulangeries locales), de la Propriété Caillebotte et de la Forêt de Sénart. Le centre commercial Valdoly est également situé à proximité, offrant une quinzaine de minutes d'accès. À moins de 10 minutes, vous trouverez les écoles primaires et le gymnase municipal. L'Église Saint-Honest, monument local, est visible depuis le coeur de ville.
La gare de Yerres est desservie par le RER D permettant de rejoindre notamment Paris-Gare-de-Lyon en moins d'une demi-heure.
Que vous souhaitiez cette maison sans modification ou une version très personnalisée, elle suivra les dernières normes environnementales RE2020 (et aura un score DPE A ou B).
Appelez-nous sans plus attendre au 09 67 70 15 81 !
Maisons BALENCY, Agence d'Ormoy, du Groupe Hexaôm, 1er constructeur de maisons individuelles en France. Pour toute étude ou projet personnalisé : Agence d'Ormoy, 23 chemin de Tournenfils, 91540 Ormoy.
Annonce proposée par un Agent Commercial Partenaire.
Mentions légales
Terrain proposé par un partenaire foncier selon disponibilités et autorisation de publicité au prix de 278 000 €. Hors droit d'enregistrement et frais de notaire. Maison proposée, avec un contrat de construction de maison individuelle, dans le cadre de la loi du 19/12/1990, au prix de 145 000 € (Hors branchements et raccordements, papiers peints, peintures, revêtement de sol dans les chambres, qui sont chiffrés dans les travaux qui restent à charge du client. Tarif modifiable sans préavis). Étiquette énergie : A. Différents modèles disponibles pour ce terrain. Assurances et garanties du constructeur comprises (RC professionnelle, décennale, dommage ouvrage).Agence Maisons Balency de Ormoy (91540)
- Téléphone :
- 09 67 70 15 81
- Adressse :
- 23 chemin de Tournenfils - 1er étage
91540 Ormoy, France
