Maison neuve à
Yerres
(91330) Référence :
PM2293908_3
Prix du projet : Maison avec Terrain
prix 427 000 €
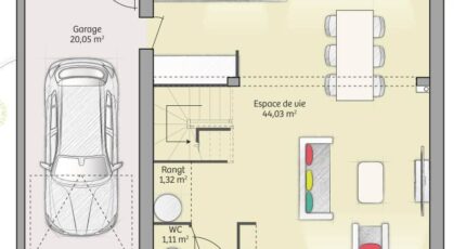
- 6 pièces
- 4 chambres
- Surface maison 91 m2
Yerres (91330), en Île de France, proche RER D :
Devenez Propriétaire avec les Maisons Balency d'Ormoy pour vous bâtir une maison de 90 m² sur un superbe terrain viabilisé de 920 m² !
Constructible sur une grande parcelle située dans un quartier calme et pavillonnaire, cette belle demeure de 4 chambres est personnalisable selon vos goûts et suivra les normes RE2020 garantissant un score DPE de A ou B.
Le projet terrain + construction (hors frais annexes) est envisageable dès 427 000 €, avec une possibilité de personnalisation complète selon vos aspirations.
Vous profiterez d'un cadre de vie privilégié à proximité des commerces (Carrefour City, NaturéO, boulangeries locales) accessibles à quelques minutes à pied ou en véhicule. Le centre commercial Valdoly est également situé à proximité, offrant une quinzaine de minutes d'accès. À moins de 10 minutes, vous trouverez les écoles primaires et le gymnase municipal. L'Église Saint-Honest, monument local, est visible depuis le coeur de ville.
Côté transport, la gare de Yerres est desservie par le RER D (direction Paris-Gare de Lyon), permettant de rejoindre Paris en environ 25 à 30 minutes selon les horaires.
Que vous souhaitiez cette maison au plan préconçu ou une version totalement sur-mesure, Notre groupe garantit une réalisation aux meilleures exigences : structure traditionnelle, finitions soignées, isolation haute performance, suivi rigoureux, et conformité RE2020 pour une consommation maîtrisée.
Appelez-nous sans plus attendre au 09 67 70 15 81 !
Maisons BALENCY, Agence d'Ormoy, du Groupe Hexaôm, 1er constructeur de maisons individuelles en France. Pour toute étude ou projet personnalisé : Agence d'Ormoy, 23 chemin de Tournenfils, 91540 Ormoy.
Annonce proposée par un Agent Commercial Partenaire.
Mentions légales
Terrain proposé par un partenaire foncier selon disponibilités et autorisation de publicité au prix de 285 000 €. Hors droit d'enregistrement et frais de notaire. Maison proposée, avec un contrat de construction de maison individuelle, dans le cadre de la loi du 19/12/1990, au prix de 142 000 € (Hors branchements et raccordements, papiers peints, peintures, revêtement de sol dans les chambres, qui sont chiffrés dans les travaux qui restent à charge du client. Tarif modifiable sans préavis). Étiquette énergie : A. Différents modèles disponibles pour ce terrain. Assurances et garanties du constructeur comprises (RC professionnelle, décennale, dommage ouvrage).Agence Maisons Balency de Ormoy (91540)
- Téléphone :
- 09 67 70 15 81
- Adressse :
- 23 chemin de Tournenfils - 1er étage
91540 Ormoy, France
