Maison neuve à
Ymare (76520) Référence : AK2388938_7

Prix du projet : Maison avec Terrain

prix 265 000 €

  • 4 pièces
  • 3 chambres
  • Surface maison 81 m2

VENTE d'une maison de 4 pièces (81 m²) à Ymare
EMPLACEMENT PRIVILÉGIÉ - MAISON 4 PIÈCES NEUVE
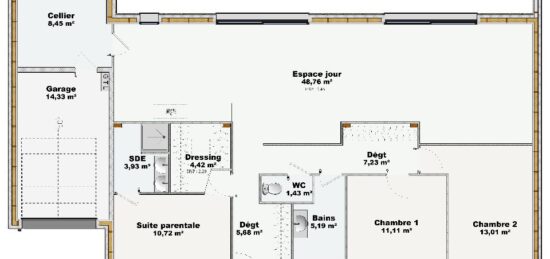
À 11 km de Rouen, Maisons Balency Boos vous propose en vente, bénéficiant d'un emplacement privilégié dans Ymare (76520), cette maison de 4 pièces de plain-pied de 81 m² et de 800 m² de terrain. Conçue de plain-pied, elle dispose de trois chambres, d'une cuisine et d'une salle de bains.
Cette maison est neuve.
La maison est située dans un quartier attractif. L'École Maternelle Wimara et l'École Élémentaire Wimara se trouvent à moins de 10 minutes à pied, tout comme une crèche. Côté transports en commun, il y a six gares à moins de 10 minutes en voiture. L'autoroute A13 et la nationale N138 sont accessibles à moins de 10 km. On trouve un tennis, une bibliothèque et une boulangerie à proximité de la maison.
Elle est proposée à l'achat pour 265 000 €.
N'hésitez pas à prendre contact avec notre agence (Amane JOURDON : 06-98-97-57-93) pour toute question sur le bien, sur les démarches à suivre ou sur les modalités de vente. Concrétisez vos projets immobiliers avec Maisons Balency Boos.

Annonce proposée par un Agent Commercial Partenaire.

Mentions légales

Terrain proposé par un partenaire foncier selon disponibilités et autorisation de publicité au prix de 105 000 €. Hors droit d'enregistrement et frais de notaire. Terrain + Maison proposés au prix de 265 000 € (Hors branchements et raccordements, papiers peints, peintures, revêtement de sol dans les chambres. Tarif modifiable sans préavis). Etiquette énergie : A. Différents modèles disponibles pour ce terrain. Assurances et garanties du constructeur (RC professionnelle, décennale, dommage ouvrage, garantie de remboursement de l'acompte, livraison à prix et délai convenu) : https://www.maisons-balency.fr/informations-legales/. HEXAOM Services est enregistré auprès de l'ORIAS en tant que Courtier en financement, Niveau 1, sous le numéro 14001345.

Contactez l'agence de Boos

02 35 80 66 66

    * Champs obligatoires

    Vos informations sont traitées par HEXAOM et transmises à un conseiller commercial qui vous contactera afin de répondre à votre demande. Les plans et images présentés sur notre site sont la propriété d’HEXAOM et ne peuvent pas être reproduits sans son accord. Pour retrouver notre politique de protection des données personnelles et exercer vos droits conformément à la « loi informatique et liberté » cliquez-ici.