Maison neuve à
Ymare (76520) Référence : KB2392155_2

Prix du projet : Maison avec Terrain

prix 420 000 €

  • 7 pièces
  • 5 chambres
  • Surface maison 170 m2

VENTE d'une maison de 7 pièces (170 m²) à Ymare
IDÉALEMENT SITUÉE - MAISON 7 PIÈCES NEUVE
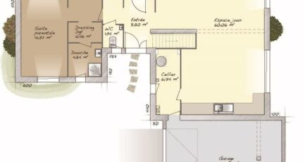
À 11 km de Rouen, à vendre idéalement située dans Ymare (76520), notre agence Maisons Balency Boos est ravie de vous proposer cette maison de 7 pièces de plain-pied de 170 m² et de 834 m² de terrain. Son intérieur dispose de cinq chambres, d'une cuisine et de trois salles de bains.
Cette maison est neuve.
La maison se situe dans un secteur prisé. L'École Maternelle Wimara et l'École Élémentaire Wimara sont implantées à moins de 10 minutes à pied, tout comme une crèche. Niveau transports en commun, il y a six gares à moins de 10 minutes en voiture. L'autoroute A13 et la nationale N138 sont accessibles à moins de 10 km. On trouve un tennis, une bibliothèque et une boulangerie à proximité du bien.
Elle est à vendre pour la somme de 420 000 €.
N'hésitez pas à prendre contact avec notre constructeur (BAZIZ Kamel : 07-80-36-63-82) pour obtenir de plus amples renseignements sur la maison. Maisons Balency Boos est là pour vous accompagner dans toutes vos démarches.

Annonce proposée par un Agent Commercial Partenaire.

Mentions légales

Terrain proposé par un partenaire foncier selon disponibilités et autorisation de publicité au prix de 115 000 €. Hors droit d'enregistrement et frais de notaire. Terrain + Maison proposés au prix de 420 000 € (Hors branchements et raccordements, papiers peints, peintures, revêtement de sol dans les chambres. Tarif modifiable sans préavis). Etiquette énergie : A. Différents modèles disponibles pour ce terrain. Assurances et garanties du constructeur (RC professionnelle, décennale, dommage ouvrage, garantie de remboursement de l'acompte, livraison à prix et délai convenu) : https://www.maisons-balency.fr/informations-legales/. HEXAOM Services est enregistré auprès de l'ORIAS en tant que Courtier en financement, Niveau 1, sous le numéro 14001345.

Contactez l'agence de Boos

02 35 80 66 66

    * Champs obligatoires

    Vos informations sont traitées par HEXAOM et transmises à un conseiller commercial qui vous contactera afin de répondre à votre demande. Les plans et images présentés sur notre site sont la propriété d’HEXAOM et ne peuvent pas être reproduits sans son accord. Pour retrouver notre politique de protection des données personnelles et exercer vos droits conformément à la « loi informatique et liberté » cliquez-ici.