Maison neuve à
Yvetot (76190) Référence : RC2328469_4

Prix du projet : Maison avec Terrain

prix 414 679 €

  • 7 pièces
  • 4 chambres
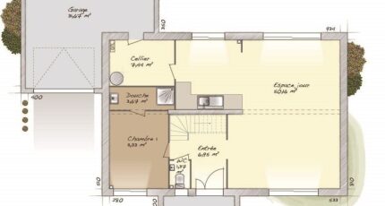
  • Surface maison 160 m2

Yvetot : maison F7 (160 m²) à construire.
IDÉALEMENT SITUÉE - MAISON 7 PIÈCES NEUVE
À vendre : à 29 km de la Manche et à 31 km de Rouen, nous vous proposons cette maison de 7 pièces de 160 m² idéalement située dans Yvetot (76190). Son intérieur dispose de quatre chambres, d'une cuisine et de deux salles de bains.
Le terrain de la propriété est de 941 m².
Cette maison compte 2 niveaux. Elle est neuve.
Cette maison est située dans un secteur attractif. Il y a des établissements scolaires de tous niveaux à moins de 10 minutes à pied, tout comme une crèche. Côté transports en commun, on trouve la gare Yvetot à quelques pas de la maison. Les autoroutes A150 et A29 sont accessibles à moins de 7 km. Il y a un tennis, une bibliothèque, des commerces, des boulangeries, un supermarché, une poissonnerie et deux supérettes à proximité du bien. Enfin, le marché Centre-Ville anime les environs.
Son prix de vente est de 414 679 €.
Contactez notre agence (RENIER Célia : 07-62-90-87-77) pour plus de renseignements sur la maison, sur les démarches à suivre ou sur les modalités de vente. Maisons Balency Boos est là pour vous accompagner dans tous vos projets immobiliers.

Annonce proposée par un Agent Commercial Partenaire.

Mentions légales

Terrain proposé par un partenaire foncier selon disponibilités et autorisation de publicité au prix de 92 000 €. Hors droit d'enregistrement et frais de notaire. Maison proposée, avec un contrat de construction de maison individuelle, dans le cadre de la loi du 19/12/1990, au prix de 322 679 € (Hors branchements et raccordements, papiers peints, peintures, revêtement de sol dans les chambres, qui sont chiffrés dans les travaux qui restent à charge du client. Tarif modifiable sans préavis). Étiquette énergie : A. Différents modèles disponibles pour ce terrain. Assurances et garanties du constructeur comprises (RC professionnelle, décennale, dommage ouvrage).

Contactez l'agence de Boos

02 35 80 66 66

    * Champs obligatoires

    Vos informations sont traitées par HEXAOM et transmises à un conseiller commercial qui vous contactera afin de répondre à votre demande. Les plans et images présentés sur notre site sont la propriété d’HEXAOM et ne peuvent pas être reproduits sans son accord. Pour retrouver notre politique de protection des données personnelles et exercer vos droits conformément à la « loi informatique et liberté » cliquez-ici.