Maison neuve à
Yvetot (76190) Référence : SEMA9027_11

Prix du projet : Maison avec Terrain

prix 422 000 €

  • 7 pièces
  • 5 chambres
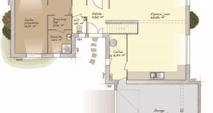
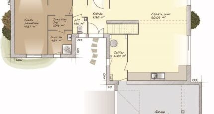
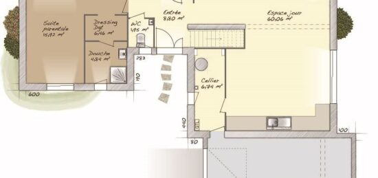
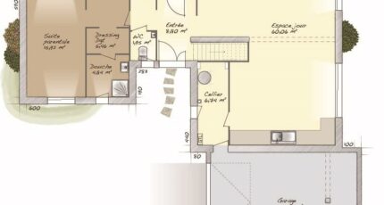
  • Surface maison 170 m2

Yvetot : maison de 7 pièces (170 m²) à vendre
PROCHE DE ROUEN - MAISON 7 PIÈCES NEUVE
À vendre : située à 29 km de la Manche et à 31 km de Rouen, nous vous proposons cette maison de 7 pièces de plain-pied de 170 m² et de 1 000 m² de terrain à Yvetot (76190).
Son intérieur inclut cinq chambres, une cuisine et trois salles de bains. Cette maison est neuve.
Des écoles de tous niveaux se trouvent à moins de 10 minutes à pied, tout comme une crèche. Niveau transports, il y a la gare Yvetot juste à côté. Les autoroutes A150 et A29 sont accessibles à moins de 7 km. On trouve un tennis, une bibliothèque, des commerces, des boulangeries, un supermarché, deux supérettes et une épicerie à quelques minutes à peine. Enfin, le marché Centre-Ville anime le quartier.
Son prix de vente est de 422 000 €.
N'hésitez pas à prendre contact avec Sébastien MASSON (06-23-38-14-17) pour obtenir de plus amples renseignements sur le bien. Maisons Balency Boos vous accompagne à toutes les étapes de l'achat et dans tous vos projets immobiliers.

Annonce proposée par un Agent Commercial Partenaire.

Mentions légales

Terrain proposé par un partenaire foncier selon disponibilités et autorisation de publicité au prix de 92 000 €. Hors droit d'enregistrement et frais de notaire. Maison proposée, avec un contrat de construction de maison individuelle, dans le cadre de la loi du 19/12/1990, au prix de 330 000 € (Hors branchements et raccordements, papiers peints, peintures, revêtement de sol dans les chambres, qui sont chiffrés dans les travaux qui restent à charge du client. Tarif modifiable sans préavis). Étiquette énergie : A. Différents modèles disponibles pour ce terrain. Assurances et garanties du constructeur comprises (RC professionnelle, décennale, dommage ouvrage).

Contactez l'agence de Boos

02 35 80 66 66

    * Champs obligatoires

    Vos informations sont traitées par HEXAOM et transmises à un conseiller commercial qui vous contactera afin de répondre à votre demande. Les plans et images présentés sur notre site sont la propriété d’HEXAOM et ne peuvent pas être reproduits sans son accord. Pour retrouver notre politique de protection des données personnelles et exercer vos droits conformément à la « loi informatique et liberté » cliquez-ici.