Maison neuve à
Yvetot (76190) Référence : SEMA9027_3

Prix du projet : Maison avec Terrain

prix 242 000 €

  • 5 pièces
  • 3 chambres
  • Surface maison 76 m2

VENTE d'une maison F5 (76 m²) à Yvetot
PROCHE DE ROUEN - MAISON 5 PIÈCES NEUVE
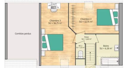
En vente à 29 km de la Manche et à 31 km de Rouen, nous sommes ravis de vous présenter cette maison de 5 pièces de 76 m² et de 1 000 m² de terrain à Yvetot (76190). Elle propose trois chambres, une cuisine et une salle de bains.
Cette maison possède 2 niveaux. Elle est neuve.
Il y a tous les types d'écoles (maternelle, élémentaire et secondaire) à moins de 10 minutes à pied, tout comme une structure d'accueil pour les enfants en bas âge. Côté transports, on trouve la gare Yvetot dans les environs. Les autoroutes A150 et A29 sont accessibles à moins de 7 km. Il y a un tennis, une bibliothèque, des commerces, des boulangeries, un supermarché, une poissonnerie et des boucheries-charcuteries à quelques minutes à peine. Enfin, le marché Centre-Ville anime les environs.
Elle est proposée à l'achat pour 242 000 €.
Prenez contact avec notre agence (MASSON Sébastien : 06-23-38-14-17) pour tout renseignement sur cette maison ou sur les modalités de vente. Maisons Balency Boos est là pour vous accompagner à toutes les étapes de votre projet.

Annonce proposée par un Agent Commercial Partenaire.

Mentions légales

Terrain proposé par un partenaire foncier selon disponibilités et autorisation de publicité au prix de 92 000 €. Hors droit d'enregistrement et frais de notaire. Maison proposée, avec un contrat de construction de maison individuelle, dans le cadre de la loi du 19/12/1990, au prix de 150 000 € (Hors branchements et raccordements, papiers peints, peintures, revêtement de sol dans les chambres, qui sont chiffrés dans les travaux qui restent à charge du client. Tarif modifiable sans préavis). Étiquette énergie : A. Différents modèles disponibles pour ce terrain. Assurances et garanties du constructeur comprises (RC professionnelle, décennale, dommage ouvrage).

Contactez l'agence de Boos

02 35 80 66 66

    * Champs obligatoires

    Vos informations sont traitées par HEXAOM et transmises à un conseiller commercial qui vous contactera afin de répondre à votre demande. Les plans et images présentés sur notre site sont la propriété d’HEXAOM et ne peuvent pas être reproduits sans son accord. Pour retrouver notre politique de protection des données personnelles et exercer vos droits conformément à la « loi informatique et liberté » cliquez-ici.