Maison neuve à
Yvetot (76190) Référence : SEMA9027_4

Prix du projet : Maison avec Terrain

prix 247 000 €

  • 6 pièces
  • 4 chambres
  • Surface maison 89 m2

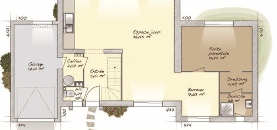
VENTE d'une maison de 6 pièces (89 m²) à Yvetot
MAISON 6 PIÈCES NEUVE - PROCHE DE ROUEN
À 29 km de la Manche et à quelques kilomètres de Rouen, Maisons Balency Boos vous propose cette maison de 6 pièces de 89 m² et de 1 000 m² de terrain à Yvetot (76190). Son intérieur offre quatre chambres, une cuisine et une salle de bains.
Il s'agit d'une maison de 2 niveaux. Elle est neuve.
On trouve tous les types d'établissements scolaires (de la maternelle au lycée) à moins de 10 minutes à pied, tout comme une crèche. Niveau transports en commun, il y a la gare Yvetot juste à côté. Les autoroutes A150 et A29 sont accessibles à moins de 7 km. On trouve un tennis, une bibliothèque, des commerces, des boulangeries, un supermarché, un bureau de poste et deux supérettes à proximité. Le marché Centre-Ville anime le quartier.
Elle est proposée à l'achat pour 247 000 €.
N'hésitez pas à prendre contact avec notre agence (Sébastien MASSON : 06-23-38-14-17) pour tout renseignement sur cette maison.

Annonce proposée par un Agent Commercial Partenaire.

Mentions légales

Terrain proposé par un partenaire foncier selon disponibilités et autorisation de publicité au prix de 92 000 €. Hors droit d'enregistrement et frais de notaire. Maison proposée, avec un contrat de construction de maison individuelle, dans le cadre de la loi du 19/12/1990, au prix de 155 000 € (Hors branchements et raccordements, papiers peints, peintures, revêtement de sol dans les chambres, qui sont chiffrés dans les travaux qui restent à charge du client. Tarif modifiable sans préavis). Étiquette énergie : A. Différents modèles disponibles pour ce terrain. Assurances et garanties du constructeur comprises (RC professionnelle, décennale, dommage ouvrage).

Contactez l'agence de Boos

02 35 80 66 66

    * Champs obligatoires

    Vos informations sont traitées par HEXAOM et transmises à un conseiller commercial qui vous contactera afin de répondre à votre demande. Les plans et images présentés sur notre site sont la propriété d’HEXAOM et ne peuvent pas être reproduits sans son accord. Pour retrouver notre politique de protection des données personnelles et exercer vos droits conformément à la « loi informatique et liberté » cliquez-ici.