Maison neuve à
Yvetot (76190) Référence : SEMA9027_6

Prix du projet : Maison avec Terrain

prix 286 000 €

  • 9 pièces
  • 5 chambres
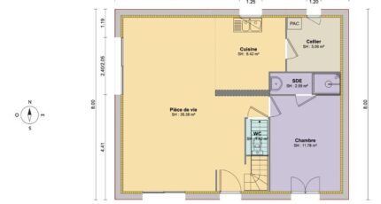
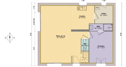
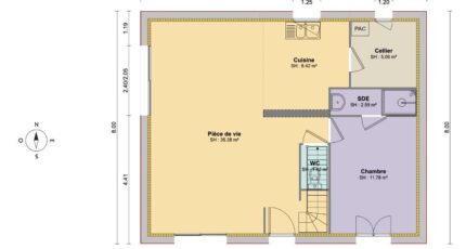
  • Surface maison 124 m2

Yvetot : maison de 9 pièces (124 m²) à vendre
PROCHE DE ROUEN - MAISON 9 PIÈCES NEUVE
À vendre : localisée à 29 km de la Manche et à quelques kilomètres de Rouen, à Yvetot (76190), découvrez cette maison de 9 pièces de 124 m². Son intérieur inclut cinq chambres, une cuisine et trois salles de bains.
Le terrain du bien s'étend sur 1 000 m².
Cette maison comporte 2 niveaux. Elle est neuve.
Il y a des écoles du primaire et du secondaire à moins de 10 minutes à pied, tout comme une crèche. Côté transports, on trouve la gare Yvetot juste à côté. Les autoroutes A150 et A29 sont accessibles à moins de 7 km. Il y a un tennis, une bibliothèque, des commerces, des boulangeries, un supermarché, des boucheries-charcuteries et une épicerie à quelques minutes. Enfin, le marché Centre-Ville anime le quartier.
Son prix de vente est de 286 000 €.
Prenez contact avec notre agence (Sébastien MASSON : 06-23-38-14-17) pour toute information sur cette maison. Faites de vos projets immobiliers une réalité avec Maisons Balency Boos.

Annonce proposée par un Agent Commercial Partenaire.

Mentions légales

Terrain proposé par un partenaire foncier selon disponibilités et autorisation de publicité au prix de 92 000 €. Hors droit d'enregistrement et frais de notaire. Maison proposée, avec un contrat de construction de maison individuelle, dans le cadre de la loi du 19/12/1990, au prix de 194 000 € (Hors branchements et raccordements, papiers peints, peintures, revêtement de sol dans les chambres, qui sont chiffrés dans les travaux qui restent à charge du client. Tarif modifiable sans préavis). Étiquette énergie : A. Différents modèles disponibles pour ce terrain. Assurances et garanties du constructeur comprises (RC professionnelle, décennale, dommage ouvrage).

Contactez l'agence de Boos

02 35 80 66 66

    * Champs obligatoires

    Vos informations sont traitées par HEXAOM et transmises à un conseiller commercial qui vous contactera afin de répondre à votre demande. Les plans et images présentés sur notre site sont la propriété d’HEXAOM et ne peuvent pas être reproduits sans son accord. Pour retrouver notre politique de protection des données personnelles et exercer vos droits conformément à la « loi informatique et liberté » cliquez-ici.