Maison neuve à
Yvetot (76190) Référence : SEMA9027_9

Prix du projet : Maison avec Terrain

prix 366 000 €

  • 5 pièces
  • 3 chambres
  • Surface maison 120 m2

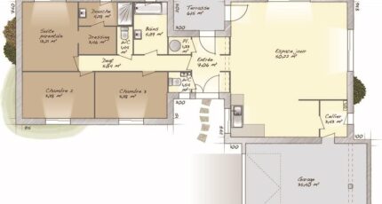
VENTE d'une maison de 5 pièces (120 m²) à Yvetot
PROCHE DE ROUEN - MAISON 5 PIÈCES NEUVE
À vendre : localisée à 29 km de la Manche et à deux pas de Rouen, notre agence Maisons Balency Boos est heureuse de vous proposer cette maison de 5 pièces de plain-pied de 120 m² et de 1 000 m² de terrain à Yvetot (76190).
Elle se divise en trois chambres, une cuisine et deux salles de bains. La maison est neuve.
Des écoles de tous niveaux (de la maternelle au lycée) sont implantées à moins de 10 minutes à pied, tout comme une structure d'accueil pour les tout-petits. Côté transports en commun, il y a la gare Yvetot à quelques pas de la maison. Les autoroutes A150 et A29 sont accessibles à moins de 7 km. On trouve un tennis, une bibliothèque, des commerces, des boulangeries, un supermarché, un bureau de poste et une poissonnerie à quelques minutes du bien. Le marché Centre-Ville anime les environs.
Son prix de vente est de 366 000 €.
Prenez contact avec Sébastien MASSON (06-23-38-14-17) pour tout renseignement sur cette maison. Maisons Balency Boos est là pour vous accompagner à toutes les étapes de l'achat.

Annonce proposée par un Agent Commercial Partenaire.

Mentions légales

Terrain proposé par un partenaire foncier selon disponibilités et autorisation de publicité au prix de 92 000 €. Hors droit d'enregistrement et frais de notaire. Maison proposée, avec un contrat de construction de maison individuelle, dans le cadre de la loi du 19/12/1990, au prix de 274 000 € (Hors branchements et raccordements, papiers peints, peintures, revêtement de sol dans les chambres, qui sont chiffrés dans les travaux qui restent à charge du client. Tarif modifiable sans préavis). Étiquette énergie : A. Différents modèles disponibles pour ce terrain. Assurances et garanties du constructeur comprises (RC professionnelle, décennale, dommage ouvrage).

Contactez l'agence de Boos

02 35 80 66 66

    * Champs obligatoires

    Vos informations sont traitées par HEXAOM et transmises à un conseiller commercial qui vous contactera afin de répondre à votre demande. Les plans et images présentés sur notre site sont la propriété d’HEXAOM et ne peuvent pas être reproduits sans son accord. Pour retrouver notre politique de protection des données personnelles et exercer vos droits conformément à la « loi informatique et liberté » cliquez-ici.