Maison neuve à
Yvetot (76190) Référence : RC2446186_2

Prix du projet : Maison avec Terrain

prix 241 881 €

  • 7 pièces
  • 4 chambres
  • Surface maison 91 m2

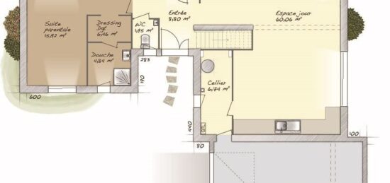
A construire : maison de 7 pièces (91 m²) à Yvetot
IDÉALEMENT SITUÉE - MAISON 7 PIÈCES NEUVE
À vendre à 29 km de la Manche et à deux pas de Rouen, idéalement située dans Yvetot (76190), votre agence Maisons Balency Boos est heureuse de vous présenter cette maison de 7 pièces de 91 m² et de 814 m² de terrain. Son intérieur compte quatre chambres, une cuisine et une salle de bains.
Il s'agit d'une maison de 2 niveaux. Elle est neuve.
Cette maison se situe dans un secteur convoité. Il y a des établissements scolaires du primaire et du secondaire à moins de 10 minutes à pied, tout comme une crèche. Niveau transports en commun, on trouve la gare Yvetot à proximité. Il y a un tennis, une bibliothèque, des commerces, deux supérettes, deux épiceries, un bureau de poste et une poissonnerie à quelques minutes. Le marché Centre-Ville anime les environs.
Son prix de vente est de 241 881 €.
Prenez contact avec notre agence (RENIER Célia : 07-62-90-87-77) pour plus de renseignements sur la maison. Faites de vos projets immobiliers une réalité avec Maisons Balency Boos.

Annonce proposée par un Agent Commercial Partenaire.

Mentions légales

Terrain proposé par un partenaire foncier selon disponibilités et autorisation de publicité au prix de 90 000 €. Hors droit d'enregistrement et frais de notaire. Terrain + Maison proposés au prix de 241 881 € (Hors branchements et raccordements, papiers peints, peintures, revêtement de sol dans les chambres. Tarif modifiable sans préavis). Etiquette énergie : A. Différents modèles disponibles pour ce terrain. Assurances et garanties du constructeur (RC professionnelle, décennale, dommage ouvrage, garantie de remboursement de l'acompte, livraison à prix et délai convenu) : https://www.maisons-balency.fr/informations-legales/. HEXAOM Services est enregistré auprès de l'ORIAS en tant que Courtier en financement, Niveau 1, sous le numéro 14001345.

Contactez l'agence de Boos

02 35 80 66 66

    * Champs obligatoires

    Vos informations sont traitées par HEXAOM et transmises à un conseiller commercial qui vous contactera afin de répondre à votre demande. Les plans et images présentés sur notre site sont la propriété d’HEXAOM et ne peuvent pas être reproduits sans son accord. Pour retrouver notre politique de protection des données personnelles et exercer vos droits conformément à la « loi informatique et liberté » cliquez-ici.