Aménagé 117

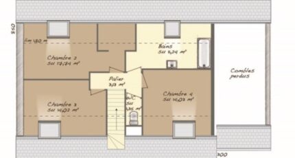
Plan maison 6 pièces 4 chambres Surface maison 117 m2

Une maison de famille et de style, une ligne résolument adaptée à la famille, des espaces jour/nuit bien définis avec les chambres des enfants à l'étage et l'espace de vie au rez-de-chaussée pour partager du temps en famille. Ce modèle Aménagé de 117 m² offre 3 chambres à l'étage avec une salle de bains, au rez-de-chaussée une chambre avec dressing et salle d'eau privative, un espace jour de 54 m² et un cellier avec accès direct au garage.

Construire ce modèle ?

    * Champs obligatoires

    Vos informations sont traitées par HEXAOM et transmises à un conseiller commercial qui vous contactera afin de répondre à votre demande. Les plans et images présentés sur notre site sont la propriété d’HEXAOM et ne peuvent pas être reproduits sans son accord. Pour retrouver notre politique de protection des données personnelles et exercer vos droits conformément à la « loi informatique et liberté » cliquez-ici.