Maison neuve à
Fublaines
(77470) Référence :
TW2455061_1
Prix du projet : Maison avec Terrain
prix 315 000 €
- 6 pièces
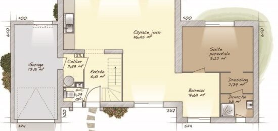
- 5 chambres
- Surface maison 120 m2
VENTE : maison de 6 pièces (120 m²) à Fublaines
EMPLACEMENT PRIVILÉGIÉ - MAISON 6 PIÈCES NEUVE
À côté de la gare de Trilport (Paris à 30 min avec le Transilien P), nous sommes heureux de vous proposer cette maison de 6 pièces de 120 m² avec vue dégagée en vente bénéficiant d'un emplacement d'exception dans Fublaines (77470). Elle dispose de cinq chambres, d'une cuisine et de deux salles de bains.
Le terrain de cette maison est de 400 m².
C'est une maison de 2 niveaux. Elle est neuve.
La propriété est située dans un quartier convoité. On trouve l'École Primaire la Colline à moins de 10 minutes à pied. Niveau transports, il y a neuf gares à moins de 10 minutes en voiture. On trouve une épicerie à quelques minutes à peine.
Son prix de vente est de 315 000 €.
Prenez contact avec Théo WIECZOREK (tél : 07-63-71-02-13) pour plus de renseignements sur la maison, sur les modalités de vente ou sur les démarches à suivre.
Annonce proposée par un Agent Commercial Partenaire.
Mentions légales
Terrain proposé par un partenaire foncier selon disponibilités et autorisation de publicité au prix de 125 000 €. Hors droit d'enregistrement et frais de notaire. Terrain + Maison proposés au prix de 315 000 € (Hors branchements et raccordements, papiers peints, peintures, revêtement de sol dans les chambres. Tarif modifiable sans préavis). Etiquette énergie : A. Différents modèles disponibles pour ce terrain. Assurances et garanties du constructeur (RC professionnelle, décennale, dommage ouvrage, garantie de remboursement de l'acompte, livraison à prix et délai convenu) : https://www.maisons-balency.fr/informations-legales/. HEXAOM Services est enregistré auprès de l'ORIAS en tant que Courtier en financement, Niveau 1, sous le numéro 14001345.Agence Maisons Balency de Baillet-en-France (95560)
- Téléphone :
- 01 34 46 05 23
- Adressse :
- 81 rue de Paris
95560 Baillet-en-France, France
