Plans de maisons

Nos plans de maisons : Maisons Balency, votre constructeur de maison sur mesure, vous invite à découvrir gratuitement ses plans de maisons. Issus de nos catalogues, nous proposons des plans modernes, contemporains, en L, en V, en U, en T, de plain pied ou encore à étage, de 1 à 6 chambres, de styles et d’architectures variés.
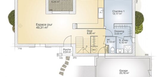
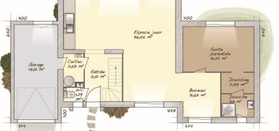
Pour chaque maison vous trouverez les plans et les perspectives 3D.

Constructeur de maison proche de vous

Trouver un
plan de maison

159 plans de maison identifiés

Emplacement

Où construire ma maison

Ou bien, rechercher dans Toute la France

Caractéristiques

Caractéristiques du bien

Nombre de chambres

Plusieurs choix possibles

Nombre de pièces

Plusieurs choix possibles

Surface

Surface habitable

m2
m2
Options

Options