Maison neuve à
Vallangoujard
(95810) Référence :
TW2454566_1
Prix du projet : Maison avec Terrain
prix 265 000 €
- 5 pièces
- 3 chambres
- Surface maison 90 m2
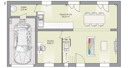
Maison de 5 pièces (90 m²) à vendre à Vallangoujard
EMPLACEMENT PRIVILÉGIÉ - MAISON 5 PIÈCES NEUVE
À vendre : à proximité du Transilien H (gare de L'Isle-Adam-Parmain, 50 min de Paris), nous vous proposons, bénéficiant d'un emplacement privilégié dans Vallangoujard (95810), cette maison de 5 pièces de 90 m² et de 430 m² de terrain avec vue sur jardin. Son intérieur dispose de trois chambres, d'une cuisine et d'une salle de bains.
Cette maison compte 2 niveaux. Elle est neuve.
Cette maison est située dans un quartier prisé. On trouve l'École Primaire Publique Grangeon à moins de 10 minutes à pied. Côté transports, il y a 13 gares à moins de 10 minutes en voiture. Il y a un tennis et une bibliothèque à quelques minutes du logement.
Elle est à vendre pour la somme de 265 000 €.
Contactez Théo WIECZOREK (tél : 07-63-71-02-13) pour toute question sur la maison. Maisons Balency Baillet-en-France vous accompagne à toutes les étapes de votre projet et dans tous vos projets immobiliers.
Annonce proposée par un Agent Commercial Partenaire.
Mentions légales
Terrain proposé par un partenaire foncier selon disponibilités et autorisation de publicité au prix de 90 000 €. Hors droit d'enregistrement et frais de notaire. Terrain + Maison proposés au prix de 265 000 € (Hors branchements et raccordements, papiers peints, peintures, revêtement de sol dans les chambres. Tarif modifiable sans préavis). Etiquette énergie : A. Différents modèles disponibles pour ce terrain. Assurances et garanties du constructeur (RC professionnelle, décennale, dommage ouvrage, garantie de remboursement de l'acompte, livraison à prix et délai convenu) : https://www.maisons-balency.fr/informations-legales/. HEXAOM Services est enregistré auprès de l'ORIAS en tant que Courtier en financement, Niveau 1, sous le numéro 14001345.Agence Maisons Balency de Baillet-en-France (95560)
- Téléphone :
- 01 34 46 05 23
- Adressse :
- 81 rue de Paris
95560 Baillet-en-France, France
