Aigue-Marine 145 Tradition

Plan maison 7 pièces 5 chambres Surface maison 145 m2

Pour vous, nous créons l'Architecture de demain : Les nombreuses ouvertures au sud, composent avec les généreux volumes de L'Aigue-marine, une atmosphère accueillante et lumineuse. Une maison de standing et harmonieuse.
Les Plus du modèle :
+ Zones jour et nuit séparées
+ Chambre au RDC
+ Suite parentale avec salle d'eau privative
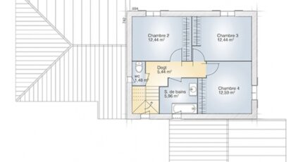
+ Salle de bain avec baignoire en plus de la salle d'eau
+ 2 WC séparés
+ Nombreux espaces de rangement prévus
+ Accès direct garage-maison
+ Terrasse couverte
+ Larges baies orientées au sud

Construire ce modèle ?

    * Champs obligatoires

    Vos informations sont traitées par HEXAOM et transmises à un conseiller commercial qui vous contactera afin de répondre à votre demande. Les plans et images présentés sur notre site sont la propriété d’HEXAOM et ne peuvent pas être reproduits sans son accord. Pour retrouver notre politique de protection des données personnelles et exercer vos droits conformément à la « loi informatique et liberté » cliquez-ici.