La Villa 170 Design
Plan maison 6 pièces 4 chambres Surface maison 170 m2
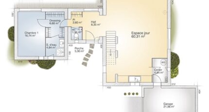
Pour vous, nous créons l'Architecture de demain : La Villa, une maison élégante aux lignes pures et actuelles. Ses plans ont été conçus pour satisfaire vos envies et les contraintes de votre terrain. L'élément central de la Villa est son « hall d'entrée » véritable clef de voute du projet : les zones jour/nuit et le garage peuvent être placés différemment autour du hall en fonction de vos souhaits.
Les Plus du modèle :
+ Zones jour et nuit séparées
+ Suite parentale avec salle d'eau privative
+ Dressing dans suite parentale
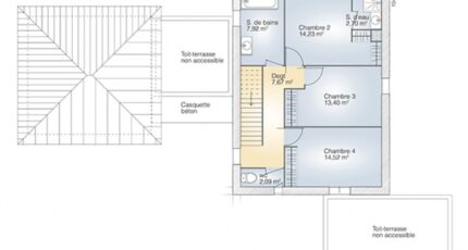
+ Salle de bain avec baignoire en plus de la salle d'eau
+ WC séparés+ Nombreux espaces de rangement prévus
+ Cellier prévu au niveau de l'arrière cuisine
+ Grand espace de vie au RDC et lumière traversante
+ Porche d'entrée et terrasse accueillantes+ Accès direct garage-maison