Saphir 95 Tradition
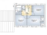
Plan maison 6 pièces 3 chambres Surface maison 95 m2
Pour vous, nous créons l'Architecture de demain : Classique et élégante, spacieuse et si confortable. Avec toutes ses pièces tournées vers le Sud, la Bastide traverse les générations. En option, possibilité de rajouter une extension permettant d'accueillir une suite au rez-de-chaussée.
Les Plus du modèle :
+ Zones jour et nuit séparées
+ Suite parentale avec salle d'eau privative
+ Salle de bain avec baignoire en plus de la salle d'eau
+ WC séparés
+ Nombreux espaces de rangement prévus
+ Cellier prévu au niveau de l'arrière cuisine
+ Grand espace de vie au RDC et lumière traversante
+ Possibilité d'extension « suite parentale » de 20 m2