Urbaine GA 8

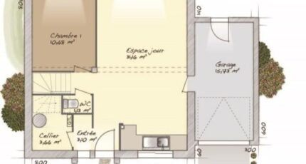
Plan maison 6 pièces 4 chambres Surface maison 98 m2

Urbaine, modèle contemporain à étage avec garage accolé, qui revisite les modèles à l'origine de la marque Balency et allie modernité et tradition régionale. Cette ligne est bien adaptée aux contraintes urbaines grâce à une conception et à une architecture optimisées pour profiter pleinement de votre terrain en toute intimité. Ce modèle de 98 m² propose 3 chambres à l'étage avec une salle de bains, au rez-de-chaussée une chambre, un espace jour de 31 m², un cellier et un garage accolé.

Construire ce modèle ?

    * Champs obligatoires

    Vos informations sont traitées par HEXAOM et transmises à un conseiller commercial qui vous contactera afin de répondre à votre demande. Les plans et images présentés sur notre site sont la propriété d’HEXAOM et ne peuvent pas être reproduits sans son accord. Pour retrouver notre politique de protection des données personnelles et exercer vos droits conformément à la « loi informatique et liberté » cliquez-ici.